COPYRIGHT ? 佛山市九洲普惠風機有限公司 版權所有
電話:0757-86635560 86635561 86635562??地址:廣東省佛山市南海獅山新城工業區
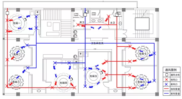
一、新風循環能否循環通暢
每個人長期停留的區域應當滿足微正壓的空氣環境,即送風略大于回風,送風口和回風口的空間距離最大為宜,距離過小的話會引起空氣短路,空氣不能完全循環,也就是存在循環死角,總有一塊區域的空氣始終不能被循環。
送風回風成對角線狀態,空氣流動路線教較長,室內空氣能夠充分循環。
送風口和回風口距離太近,空氣流動路線短,房間另外一層空氣流動緩慢。

二、各個房間風量是否平衡
空氣是流體,在管道中輸送,輸送距離越遠,空氣動能越差,也就是隨著管道的長度增長,空氣的風壓就會越低,所以較遠的房間就會存在風壓過低風量過小的情況。
針對這種情況,就要對管道調平衡,離風機近的風口管道風閥或者風口開啟度調小反之調大。通常要測風量是否平衡,如果沒有測試儀器的話可用手或者紙片放在風口處做簡單的感知辨別。
三、噪音是否滿足要求
裝完新風系統后,在設備跟前測噪音值應該能比設備標注大一些,這個是比較正常的,但是如果在房間里面能吵到你,那你就要測噪音了,測量值如果大于45分貝,那可能就是系統存在問題,可按照《家用新風機噪音大的原因與處理辦法》來要求處理。
四、控制設備是否完好
一般的家用新風設備在控制面板上都能調節風量大小的,基本按照強、中、弱這三階來劃分的,用戶可按照說明書自行驗證控制設備完好性。
五、檢修是否方便
新風機在使用一段時間后基本都是要清洗或者更換濾芯的,要確保設備安裝后濾芯的拆卸便捷。不要設備安裝上了,濾芯拆不下了,那簡直就是一個憂傷的故事。
六、是否影響美觀
這個,各位看官自行定奪。最好把要求提前提出來,以免有爭議。